CASE34:家族の成長に寄り添い、質感と心地よさを丁寧に描いたメゾネットリノベーション
▲Click here
最上階のメゾネットタイプという、開放感あふれる住まい。
その空間に、新しい暮らしを描いたのは、ご夫婦と男の子2人、4人家族のA様ご一家です。
今回の住まい探しのきっかけは、長年住まわれたマンションの売却と、お子さまの成長。
ちょうど生活スタイルの変化が重なるタイミングで、弊社のホームページからご相談いただきました。
物件選びからリノベーションまでをワンストップでご依頼いただき、出会ったのが、川崎市にある眺望の良いメゾネット。
広がる空、ゆったりとした最上階の間取り、そして4人それぞれに個室が取れること。家族の暮らしを見据えるうえで理想的な物件でした。
LDKはご家族が長い時間をともに過ごす場所だからこそ、素材や視線の抜け方にもこだわりました。
家族が心地よく暮らす”という軸で考える、空間のかたち
リノベーションにおいては、個室をきちんと設けながらも、家族がつながる気配を大切にしたいという思いが一貫してありました。
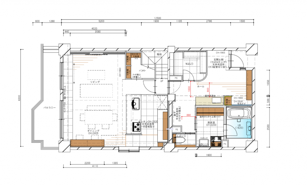
たとえば、1階にはLDKと広い玄関ホールを配置。
キッチン天板には重厚感のあるセラミック素材を採用。
さらにキッチン上部の天井には木の羽目板を施すことで、ぐっと空間に奥行きと温もりが生まれました。
パントリーを設けて、キッチンまわりの生活感はすっきり隠す。
家具のように美しいキッチンと、実用性の高さのどちらも叶えた空間です。
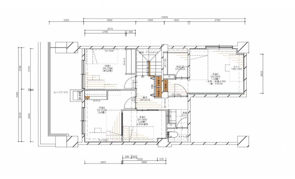
2階は、4人それぞれの“自分の時間”が生まれる場所
2階にはご夫婦の個室と、お子さまたちの部屋をレイアウト。
リモートワークをされているご主人のためには、仕事部屋を別に借りていた頃とは違い、ご自宅内にしっかりとした個室を確保。
「見えない不安」を、実際に「見て・触れて」解消
今回のプロジェクトで印象的だったのは、奥様が素材に対してとても感度が高かったこと。
ご自身の海外生活のご経験から、「日本のビニールクロスではなく、自然素材のものを使いたい」という明確なご希望がありました。
その分、素材選びには慎重さもあり、実際に見学会などに足を運んでいただき、空間の中でどう見えるか・どう感じられるかをご体感いただきながら決めていきました。
また、キッチンの向きを変えるために床上げが必要になる場面では、「その分、天井が低く感じられないか」という懸念がありましたが、現場見学で実際の施工例をご覧いただいたことで不安が解消され、「これなら大丈夫」と納得の上で進めていただきました。
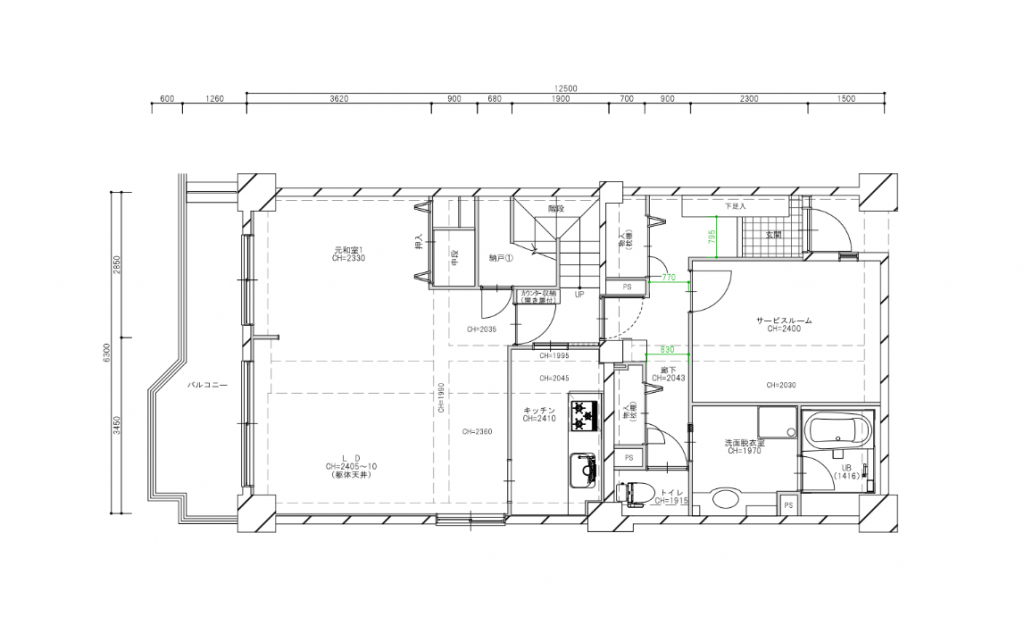
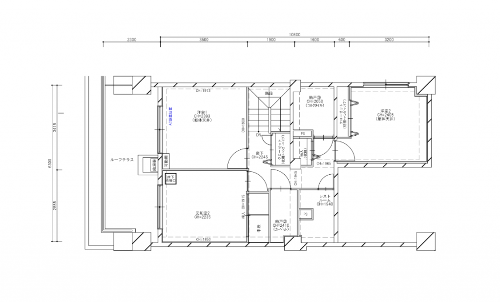
工事前写真






事例DATA
- 所在地:川崎市高津区
- 建物の種類:マンション
- 築年数:築41年
- 施工期間:3ヶ月
- 施工面積:145㎡
- 費用:2200万円

































